Schicke Einbauküche im Landhausstil

geplant, montiert, begeistert

Zurück

Di 10/Dez/2019

Die Fronten sind in hochwertigem Softmatt-Lack in Quarzgrau gehalten. Perfekt abgestimmt sind die Arbeitsplatte und die Nischenverkleidung in Nussbaum Royal. Selbst die Fensterlaibungen wurden bei der Montage mit eingearbeitet und bilden einen schönen Übergang zur Arbeitsplatte. Durch die Planung wurde ein Maximum an Arbeitsfläche erzielt, die trotz Dachschrägen überall zugänglich bzw. nutzbar ist.

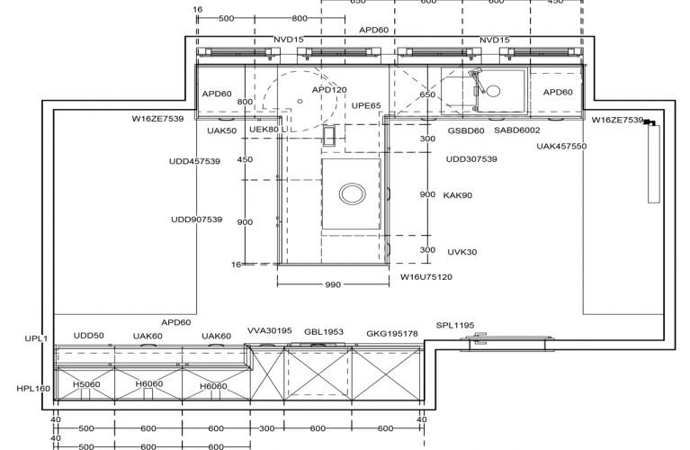
Grundriss / 3D-Planung

Umsetzung

Zurück

Cookies erleichtern die Bereitstellung unserer Dienste. Mit der Nutzung unserer Dienste erklären Sie sich damit einverstanden, dass wir Cookies verwenden. weitere InformationenOK