Büroküche in Coburg

geplant, montiert, begeistert

Zurück

Di 19/Nov/2019

Hier wird jede Nische sinnvoll genutzt!
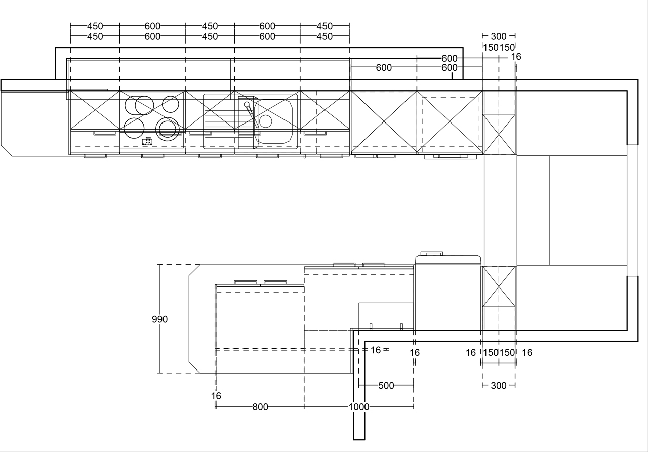
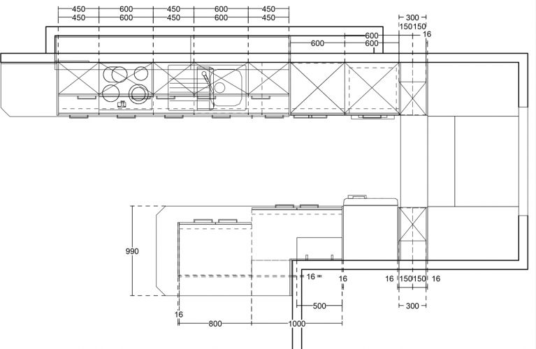
Besonderheit ist hier die Anpassung der Regale an die Treppenstufen und viel Stauraum unter der Inselplatte. Die Oberschränke sind an der Trockenwand vorgebaut worden, sodass eine Nische für eine 90 cm tiefe Arbeitsplatte entstanden ist. Die teilgewerbliche Spülmaschine mit 14 Minuten Schnellprogramm ermöglicht ein zeitnahes Reinigen und ist auch für die Mitarbeiter eine Arbeitserleichterung.
Die Fronten sind in Lacklaminat weiß Hochglanz, der Korpus in quarzgrau, Arbeitsplatte und Nischenverkleidung in Chalet-Eiche gehalten.

Grundriss

Umsetzung

Zurück

Cookies erleichtern die Bereitstellung unserer Dienste. Mit der Nutzung unserer Dienste erklären Sie sich damit einverstanden, dass wir Cookies verwenden. weitere InformationenOK